Chalet Machapuchare
Val d’Isère, France
Magnifique chalet à Val d'Isère
Ce magnifique chalet est une résidence privée unique et captivante à Val d'Isère. La qualité de la finition et l'expertise artisanale sont inégalées, avec chaque élément méticuleusement choisi pour offrir une ambiance à la fois luxueuse et apaisante.
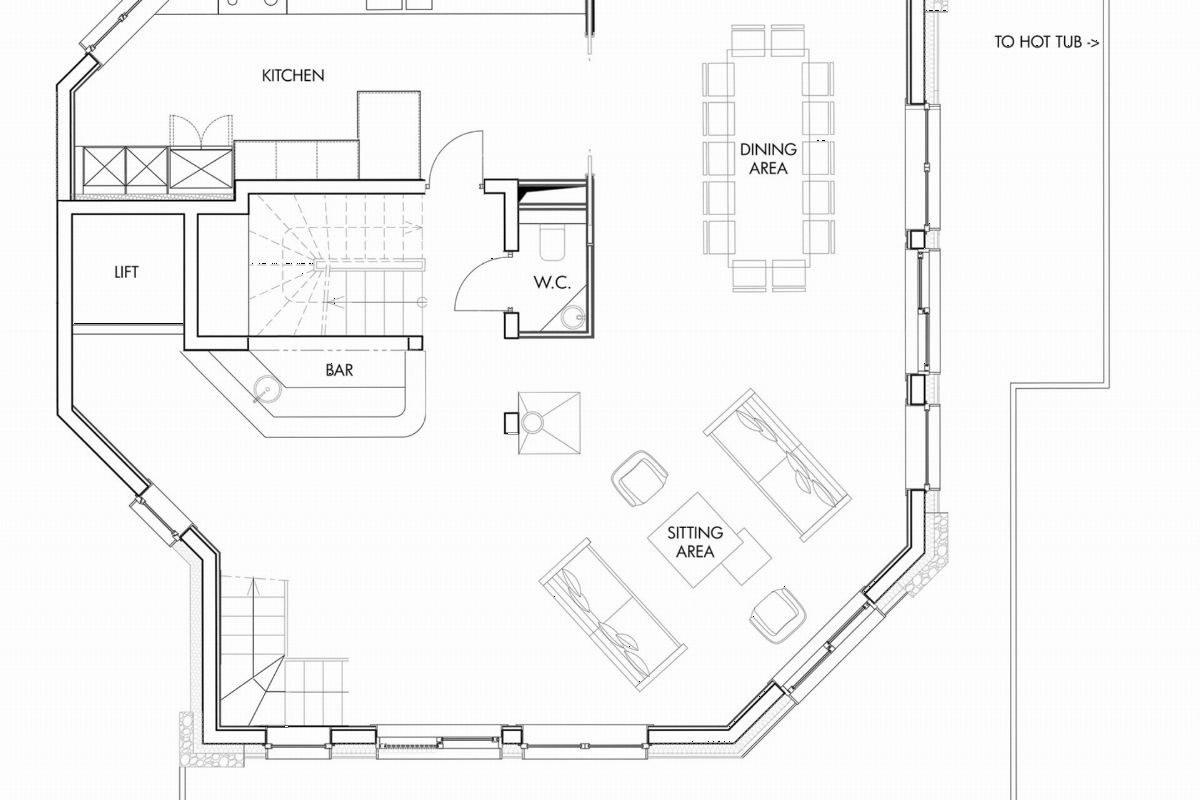
Le cœur du chalet est un spectaculaire salon à double hauteur, avec d'immenses fenêtres offrant une vue imprenable sur les sommets environnants. Cet espace bien conçu propose de nombreux sièges sur de grands canapés confortables, une vaste salle à manger, un bar bien garni, des coins lecture et jeux sur la mezzanine, et des balcons enveloppants menant au bain à remous, offrant probablement les meilleures vues de la vallée.
Disposition
Villa surface: 500
Niveau 0 :
> 1 x chambre double/twin avec salle de douche et WC attenant
Niveau +1 :
> 1 x suite familiale (1 lit double/twin et 1 lit superposé enfant)
avec salle de bain en suite, WC et accès balcon commun
> 2 x chambres doubles/twin avec salles de douche attenantes,
wc et accès au balcon commun
> 1 x chambre double/twin avec salle de bain et wc en suite
Dernier étage :
> 1 x chambre principale avec salle de douche attenante,
baignoire séparée, WC et accès balcon privé
> 1 x chambre principale avec salle de bain en suite avec
douche et wc séparés
Distances
- Genève , 2h45 heures en voiture
- 3 minutes en voiture
- 3 minutes en voiture
Services inclus
- Service de minibus privés
- Service de montage de skis et chaussures en chalet
- Petit-déjeuner fraîchement préparé, thé de l'après-midi tous les jours
- De délicieux dîners à quatre plats six jours de votre séjour
- Champagne à volonté à toute heure
- Grands vins de château et de domaine en bouteille
- Votre forfait de ski vous attend à votre arrivée
- (Coût du forfait non inclus dans le prix)
- Draps de haute qualité et serviettes moelleuses
- Changement des serviettes en milieu de semaine
- Couettes en duvet d'oie
- Deux oreillers pour chaque invité
- Robes de chambre et chaussons de luxe
- Sèche-cheveux dans chaque chambre
- Produits de toilette L'Occitane
- Fleurs fraîches et magazines
Equipements
- TV
- Wi-fi
- extérieur Jacuzzi
- Hammam
- Piscine
- Parking
- Cinema (Projector)
- Gym avec
- Chauffe bottes
- Cheminée






















































